Detail zakázky
Želešice
Kompletní realizace
2021 - 2022
INTERIÉRY MIKULEC
Přestavba chaty
Pohodová klasika
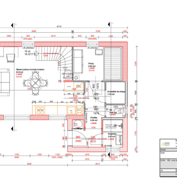
Návrh přestavby
Výchozí stav
Původní chata dispozičně ani technicky neodpovídala současným požadavkům na komfortní užívání. Prostor byl členěn neprakticky a nebyl připraven na celoroční provoz.
Návrh řešení
Cílem rekonstrukce bylo vytvořit funkční a přehledné uspořádání interiéru vhodné nejen pro rekreaci, ale i pro budoucí trvalé bydlení. Dispozice byla upravena s důrazem na logickou návaznost obytných prostor a efektivní využití plochy.
Návrh respektoval konstrukční možnosti objektu a připravil jej na dlouhodobé užívání.
Výsledek
Rekonstrukce proměnila původní chatu v plnohodnotný obytný prostor. Objekt dnes slouží k trvalému bydlení, což potvrzuje funkčnost a dlouhodobou udržitelnost navrženého řešení.
Obrázková galerie
Fotografie zachycují průběh rekonstrukce i finální podobu interiéru. Realizace vyžadovala koordinaci stavebních úprav a důslednou kontrolu návaznosti jednotlivých profesí tak, aby byl objekt připraven na celoroční provoz.
Pusťme se do realizace vašeho vysněného interiéru
Úvodní konzultace zdarma
Kontakní informace
IČ: 02577640
Telefon
+420 777 896 640
miroslav.mikulec@interierymikulec.cz
Sídlo
Osadní 46/39
Praha 7 – Holešovice, 170 00



















































